咖迷社区(CAXA数码大方)

 找回密码
 立即注册

QQ登录

只需一步,快速开始

查看: 9375|回复: 4

怎样定义个人图库,使得调用时直径尺寸带直径符号?

[复制链接]

5

主题

12

帖子

239

积分

注册会员

Rank: 2

积分
239
发表于 2021-1-23 17:59:33 | 显示全部楼层 |阅读模式
本帖最后由 DoctorWho 于 2021-1-25 07:38 编辑

怎样定义个人图库,使得调用时直径尺寸带直径符号?

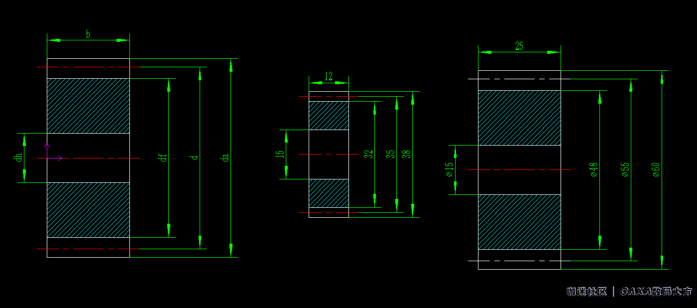
下图里左边的是自定义的图形,中间的是自定义后调用出来的,右边的图形是系统“常用图形”-->“常用截面图”里的“齿轮简面”
系统里的图形调出来直径尺寸有直径符号,自定义的该怎样设置才能有?

屏幕截图 2021-01-23 175203.png
回复

使用道具 举报

30

主题

2051

帖子

2万

积分

版主

Rank: 4

积分
24460

咖迷社区专家(CAXA)

发表于 2021-1-25 09:17:52 | 显示全部楼层
好像图库里的带尺寸的,有直径符号的都是文本替代。
回复 支持 反对

使用道具 举报

5

主题

12

帖子

239

积分

注册会员

Rank: 2

积分
239
 楼主| 发表于 2021-1-26 17:12:35 | 显示全部楼层
caxadaxia 发表于 2021-1-25 09:17
好像图库里的带尺寸的,有直径符号的都是文本替代。

所以个人设置没法实现是吗?
回复 支持 反对

使用道具 举报

12

主题

88

帖子

446

积分

注册会员

Rank: 2

积分
446
QQ
发表于 2021-1-29 10:57:07 | 显示全部楼层
CAXA里标注某些特殊符号,有转换式,比如:输入的%x,确认后实际将显示为×,%c实际显示为Φ,等等~
回复 支持 反对

使用道具 举报

5

主题

12

帖子

239

积分

注册会员

Rank: 2

积分
239
 楼主| 发表于 2021-1-30 20:49:06 | 显示全部楼层
sengel 发表于 2021-1-29 10:57
CAXA里标注某些特殊符号,有转换式,比如:输入的%x,确认后实际将显示为×,%c实际显示为Φ,等等~ ...

提取图库时这样输入无效。
回复 支持 反对

使用道具 举报

您需要登录后才可以回帖 登录 | 立即注册

本版积分规则

手机版|小黑屋|咖迷社区(CAXA数码大方) ( 京ICP备05001831号-1 )

GMT+8, 2025-10-2 04:13 , Processed in 0.144531 second(s), 24 queries .

Powered by Discuz! X3.4

Copyright © 2001-2021, Tencent Cloud.

快速回复 返回顶部 返回列表