咖迷社区(CAXA数码大方)

 找回密码
 立即注册

QQ登录

只需一步,快速开始

查看: 8563|回复: 2

CAXA 3D 实体设计2021视频教程——气缸的造型与工程图出图

[复制链接]

18

主题

261

帖子

1311

积分

高级会员

Rank: 4

积分
1311
发表于 2021-1-27 13:52:08 | 显示全部楼层 |阅读模式
本帖最后由 linjibo1 于 2021-2-26 10:11 编辑

视频教程点击下面的连接
CAXA 3D 实体设计2021视频教程——气缸的造型与工程图出图(百家号视频网址免费收看视频教程)


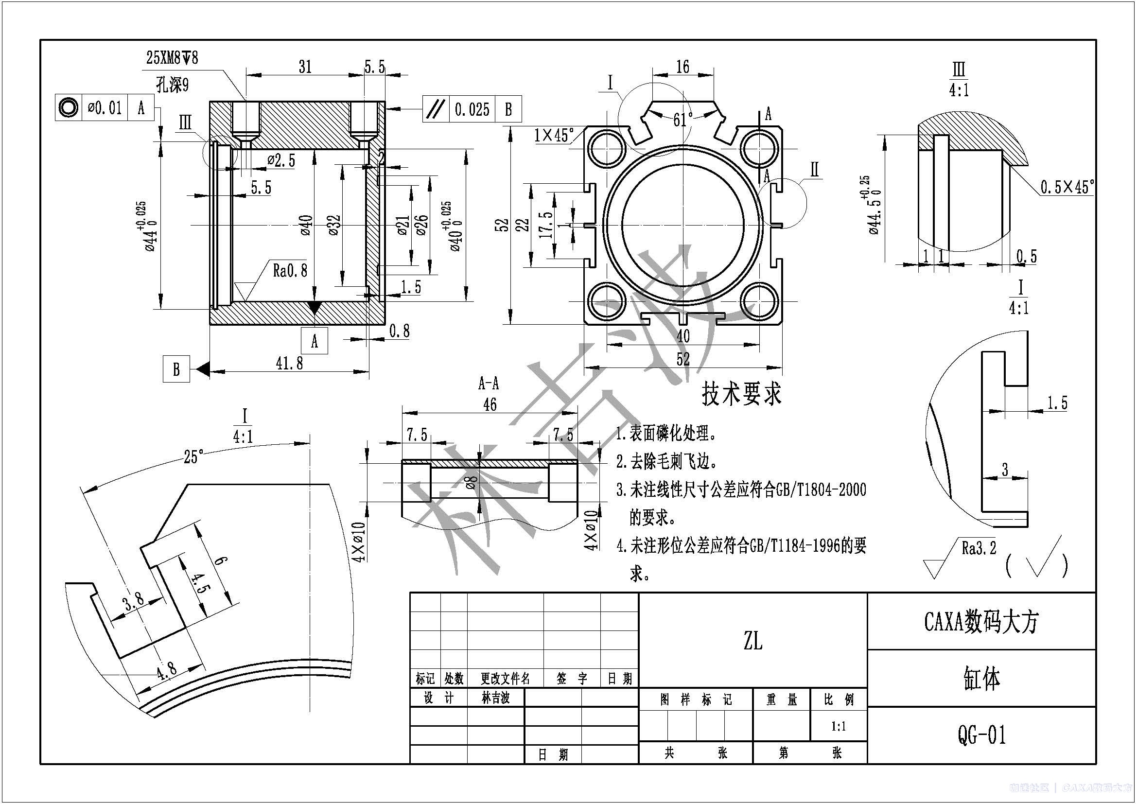
气缸的产品造型与出图视频教程,造型思路上主要讲解了多实体造型与装配。
缸体造型:主要利用草图以及基本图素绘制缸体的外形,并且在草图中使用草图的共享,利用同一个草图实现多个特征的造型,并且讲解了螺纹孔的绘制。
缸体工程图:讲解缸体全剖、局部放大视图、局部剖视图等多种视图表达方法的使用,并且讲解标注尺寸、表面粗糙度、几何公差、基准等的绘制方法。
活塞:利用电子图板中的孔轴命令绘制草图外形,然后复制导入CAXA实体设计草图中,达到简化绘制轴套类零件草图的目的。
活塞杆:利用孔命令绘制螺纹孔,利用工程标注中的修饰螺纹表达轴类零件外螺纹。
端盖:利用电子图板中的孔轴命令绘制草图外形,然后复制导入CAXA实体设计草图中,达到简化绘制轴套类零件草图的目的。
标准件绘制:利用CAXA实体设计中常用选项中的标准件来导入和修改标准件,也可以利用CAXA电子图板中的插入标准件来导入标准件的草图进行造型。
气缸装配图绘制:讲解气缸全剖主视图绘制,以及讲解引出零件序号,自动生成明细栏方法。

气缸渲染图.jpg 气缸装配图.jpg 端盖.jpg 缸体.jpg 活塞.jpg 活塞杆.jpg 外购件尺寸参考.jpg


回复

使用道具 举报

103

主题

314

帖子

4986

积分

高级会员

Rank: 4

积分
4986
QQ
发表于 2021-1-27 18:36:02 | 显示全部楼层
链接打不开
回复 支持 反对

使用道具 举报

18

主题

261

帖子

1311

积分

高级会员

Rank: 4

积分
1311
 楼主| 发表于 2021-1-28 07:46:00 | 显示全部楼层
回复 支持 反对

使用道具 举报

您需要登录后才可以回帖 登录 | 立即注册

本版积分规则

手机版|小黑屋|咖迷社区(CAXA数码大方) ( 京ICP备05001831号-1 )

GMT+8, 2025-10-25 19:40 , Processed in 0.156110 second(s), 24 queries .

Powered by Discuz! X3.4

Copyright © 2001-2021, Tencent Cloud.

快速回复 返回顶部 返回列表