咖迷社区(CAXA数码大方)

 找回密码
 立即注册

QQ登录

只需一步,快速开始

查看: 6983|回复: 7

EXCEL表格显示多余的部分怎样去掉

  [复制链接]

21

主题

127

帖子

618

积分

中级会员

Rank: 3Rank: 3

积分
618
发表于 2023-7-18 20:57:57 | 显示全部楼层 |阅读模式
如图,表格外的单元格是多余的,怎样可以不显示多余的这部分。



微信图片_20230718205510.png
回复

使用道具 举报

5

主题

392

帖子

5225

积分

金牌会员

Rank: 6Rank: 6

积分
5225
发表于 2023-7-19 09:03:22 | 显示全部楼层
看着不像表格像插入的图片,请看一下特性面板,这个是什么,谢谢
回复 支持 反对

使用道具 举报

21

主题

127

帖子

618

积分

中级会员

Rank: 3Rank: 3

积分
618
 楼主| 发表于 2023-7-19 21:05:59 | 显示全部楼层
yejjyejj 发表于 2023-7-19 09:03
看着不像表格像插入的图片,请看一下特性面板,这个是什么,谢谢

这个是插入的EXCEL,双击就可以EXCEL编辑
原来建立时是正常的,没有旁边的空白表格,EXCEL编辑时,去掉了一些内容,去掉的部分就是空白的了。
回复 支持 反对

使用道具 举报

21

主题

127

帖子

618

积分

中级会员

Rank: 3Rank: 3

积分
618
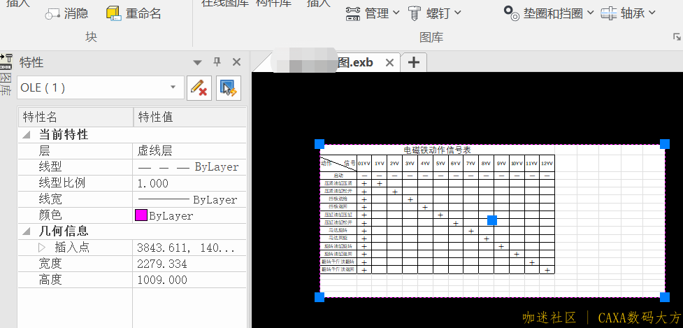
 楼主| 发表于 2023-7-19 21:13:37 | 显示全部楼层
本帖最后由 9619 于 2023-7-19 21:15 编辑
yejjyejj 发表于 2023-7-19 09:03
看着不像表格像插入的图片,请看一下特性面板,这个是什么,谢谢

OLE插入
微信图片_20230719210958.png
回复 支持 反对

使用道具 举报

5

主题

392

帖子

5225

积分

金牌会员

Rank: 6Rank: 6

积分
5225
发表于 2023-7-21 11:19:34 | 显示全部楼层

那是直接复制表格过去的,为什么使用插入呢,Excel表格插入,OLE对象这样是正确的
回复 支持 反对

使用道具 举报

0

主题

3

帖子

49

积分

新手上路

Rank: 1

积分
49
发表于 2023-7-28 08:33:08 | 显示全部楼层
删除后重新复制你要的区域,再EXC文件粘贴,再删除之前的!
回复 支持 反对

使用道具 举报

21

主题

127

帖子

618

积分

中级会员

Rank: 3Rank: 3

积分
618
 楼主| 发表于 2023-8-5 17:43:20 | 显示全部楼层
13883230997 发表于 2023-7-28 08:33
删除后重新复制你要的区域,再EXC文件粘贴,再删除之前的!

这个办法我一直在用,有点麻烦
回复 支持 反对

使用道具 举报

21

主题

127

帖子

618

积分

中级会员

Rank: 3Rank: 3

积分
618
 楼主| 发表于 2023-8-5 17:44:38 | 显示全部楼层
yejjyejj 发表于 2023-7-21 11:19
那是直接复制表格过去的,为什么使用插入呢,Excel表格插入,OLE对象这样是正确的 ...

下次试试。
回复 支持 反对

使用道具 举报

您需要登录后才可以回帖 登录 | 立即注册

本版积分规则

手机版|小黑屋|咖迷社区(CAXA数码大方) ( 京ICP备05001831号-1 )

GMT+8, 2025-10-2 02:43 , Processed in 0.190242 second(s), 23 queries .

Powered by Discuz! X3.4

Copyright © 2001-2021, Tencent Cloud.

快速回复 返回顶部 返回列表