咖迷社区(CAXA数码大方)

 找回密码
 立即注册

QQ登录

只需一步,快速开始

查看: 9162|回复: 1

关于"使新标注可关联"的逻辑问题

[复制链接]

8

主题

16

帖子

315

积分

注册会员

Rank: 2

积分
315
发表于 2020-5-15 14:15:01 | 显示全部楼层 |阅读模式
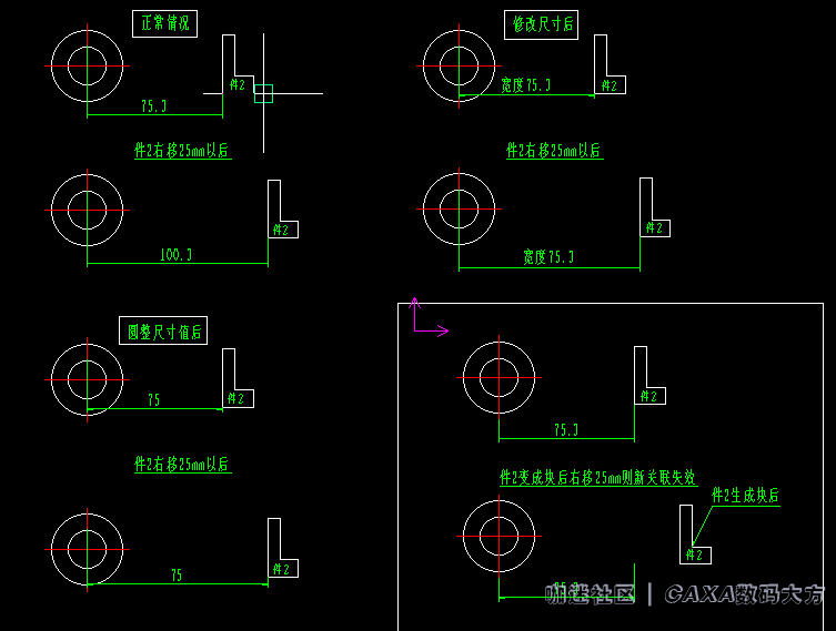
"使新标注可关联"这个功能存在逻辑问题,尺寸对于一张图纸很重要,不允许存在非人为的错误。"使新标注可关联"尺寸是自动变化的,但如果如下图所示就非常危险了(我们经常会圆整小数点或尺寸添加文字等),建议CAXA应该考虑改善。(另外"使新标注可关联"不选取的话会出现对象捕捉模式中打钩的如端点 中点等无缘无故全部清除,对象捕捉重新打钩后过一会又全部清除了,非常烦 注:win10系统)

新标注关联逻辑问题.PNG
新标注关联逻辑问题.PNG
回复

使用道具 举报

30

主题

2051

帖子

2万

积分

版主

Rank: 4

积分
24460

咖迷社区专家(CAXA)

发表于 2020-5-19 09:20:53 | 显示全部楼层
本帖最后由 caxadaxia 于 2020-5-19 09:31 编辑

我试了一下,做成块后,标注尺寸,移动还是有关联的。
你是先标注尺寸,再生成块的吧?这样就不是新标注的尺寸了,没有关联。应该是生成块后再标注尺寸。
还有更改尺寸的问题,尺寸更改后,你还想要自动变尺寸,这个有点那个了,圆整尺寸,不是你这样的做法的,你这样说修改了尺寸了。画图,要严格按实际尺寸来,不能改尺寸,改了尺寸,你就要考虑后果!
你做好打开尺寸标识,这样有那些尺寸是改过的就清楚了。
你把尺寸75.3改成75,不能手动改,可以用标注精度,或者就要移动到精确的位置。
回复 支持 反对

使用道具 举报

您需要登录后才可以回帖 登录 | 立即注册

本版积分规则

手机版|小黑屋|咖迷社区(CAXA数码大方) ( 京ICP备05001831号-1 )

GMT+8, 2025-10-1 12:56 , Processed in 0.171709 second(s), 24 queries .

Powered by Discuz! X3.4

Copyright © 2001-2021, Tencent Cloud.

快速回复 返回顶部 返回列表