咖迷社区(CAXA数码大方)

 找回密码
 立即注册

QQ登录

只需一步,快速开始

查看: 9101|回复: 3

电子图板2005问题

[复制链接]

21

主题

194

帖子

519

积分

中级会员

Rank: 3Rank: 3

积分
519
QQ
发表于 2010-11-26 11:02:00 | 显示全部楼层 |阅读模式
电子图板2005出现以下问题,不知问题原因,请教下大家:
操作系统:windows xp
电子图板:2005R4.1企业版
运行账户:Administrator


问题一:对图纸存盘时,点击保存命令存不了盘,有以下提示,只能另存。

jpg

jpg



问题二:新建文件时,弹出的对话框中无内容。但是在电子图板安装目录下的SUPPORTCHS文件夹中能看到各种TPL文件。

jpg

jpg





问题三:选用剖面图案,在图案列表中没有任何图案,在高级浏览中能看到其他图案,但调用不了

jpg

jpg





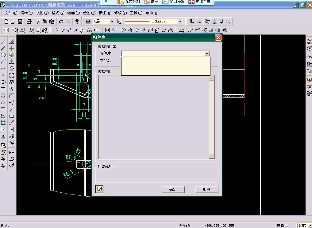
问题四:构件库中看不到任何内容

jpg

jpg



回复

使用道具 举报

21

主题

194

帖子

519

积分

中级会员

Rank: 3Rank: 3

积分
519
QQ
 楼主| 发表于 2010-11-26 11:18:00 | 显示全部楼层
使用管理员账户,重装过软件和操作系统,也没解决问题
回复 支持 反对

使用道具 举报

49

主题

1282

帖子

4万

积分

超级版主

Rank: 6Rank: 6

积分
41111

咖迷论坛管理(CAXA)

发表于 2010-11-26 11:29:00 | 显示全部楼层
应该是对电子图板的安装目录无存取权限。可以先试试能否拷贝个文件到电子图板安装目录粘贴成功。

比如\caxa\caxaeb\...\temp目录
回复 支持 反对

使用道具 举报

21

主题

194

帖子

519

积分

中级会员

Rank: 3Rank: 3

积分
519
QQ
 楼主| 发表于 2010-11-26 14:18:00 | 显示全部楼层
1、将360软件卸载了;
2、在\caxa\caxaeb\...\temp目录里可以拷文件进去,也能将图纸文件另存进该目录;

依然有上述问题
回复 支持 反对

使用道具 举报

您需要登录后才可以回帖 登录 | 立即注册

本版积分规则

手机版|小黑屋|咖迷社区(CAXA数码大方) ( 京ICP备05001831号-1 )

GMT+8, 2025-10-1 09:30 , Processed in 0.140503 second(s), 25 queries .

Powered by Discuz! X3.4

Copyright © 2001-2021, Tencent Cloud.

快速回复 返回顶部 返回列表