咖迷社区(CAXA数码大方)

 找回密码
 立即注册

QQ登录

只需一步,快速开始

查看: 7694|回复: 3

电子图板2013r1使用过程中后退变为粘贴命令

[复制链接]

33

主题

201

帖子

0

积分

新手上路

Rank: 1

积分
0
发表于 2013-1-29 19:29:22 | 显示全部楼层 |阅读模式
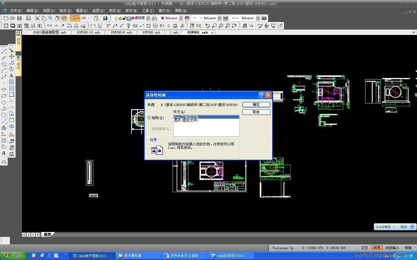
如题
20130123-caxa后退变粘贴.JPG
回复

使用道具 举报

49

主题

1282

帖子

4万

积分

超级版主

Rank: 6Rank: 6

积分
41111

咖迷论坛管理(CAXA)

发表于 2013-1-29 19:33:50 | 显示全部楼层
用“界面重置”试一下管用么
回复 支持 反对

使用道具 举报

83

主题

2074

帖子

1万

积分

版主

Rank: 4

积分
17664

咖迷社区专家(CAXA)

发表于 2013-1-30 08:56:04 | 显示全部楼层
这是个BUG,早有人提出过,希望CAXA能在更新版本中改正。
不过,好像是用FLUENT界面无此问题。
回复 支持 反对

使用道具 举报

18

主题

118

帖子

120

积分

注册会员

Rank: 2

积分
120
发表于 2013-1-30 09:27:05 | 显示全部楼层
caxa2013好多bug...
回复 支持 反对

使用道具 举报

您需要登录后才可以回帖 登录 | 立即注册

本版积分规则

手机版|小黑屋|咖迷社区(CAXA数码大方) ( 京ICP备05001831号-1 )

GMT+8, 2025-10-1 11:05 , Processed in 0.109272 second(s), 23 queries .

Powered by Discuz! X3.4

Copyright © 2001-2021, Tencent Cloud.

快速回复 返回顶部 返回列表