咖迷社区(CAXA数码大方)

 找回密码
 立即注册

QQ登录

只需一步,快速开始

查看: 11237|回复: 6

帮助修复一下exb文件

[复制链接]

111

主题

1596

帖子

6万

积分

超级版主

Rank: 6Rank: 6

积分
61245

咖迷社区专家(CAXA)

QQ
发表于 2013-2-1 12:40:21 | 显示全部楼层 |阅读模式
帮助CAXA群里的一位电子图板用户求助修复一下exb文件(见附件) 直通法兰50(坏).exb (35.73 KB, 下载次数: 16413)
回复

使用道具 举报

0

主题

67

帖子

801

积分

中级会员

Rank: 3Rank: 3

积分
801
发表于 2013-2-1 12:51:20 | 显示全部楼层
麻烦大家帮忙修复一下文件,谢谢了!!
回复 支持 反对

使用道具 举报

3

主题

2506

帖子

1万

积分

超级版主

Rank: 6Rank: 6

积分
14898
发表于 2013-2-1 13:49:06 | 显示全部楼层
老徐已经传给我了,已经内部反馈了,开发人员调查中。谢谢老徐、老赵
回复 支持 反对

使用道具 举报

3

主题

2506

帖子

1万

积分

超级版主

Rank: 6Rank: 6

积分
14898
发表于 2013-2-1 13:52:39 | 显示全部楼层
回复 2楼小慧的帖子

这个文件是怎样做出来?请描述一下过程,另外这张图纸中主要有哪些图素。
回复 支持 反对

使用道具 举报

5

主题

38

帖子

175

积分

注册会员

Rank: 2

积分
175
发表于 2013-2-1 15:20:32 | 显示全部楼层
EB97 的? 用什么版本做出来的?
回复 支持 反对

使用道具 举报

0

主题

67

帖子

801

积分

中级会员

Rank: 3Rank: 3

积分
801
发表于 2013-2-1 16:11:08 | 显示全部楼层
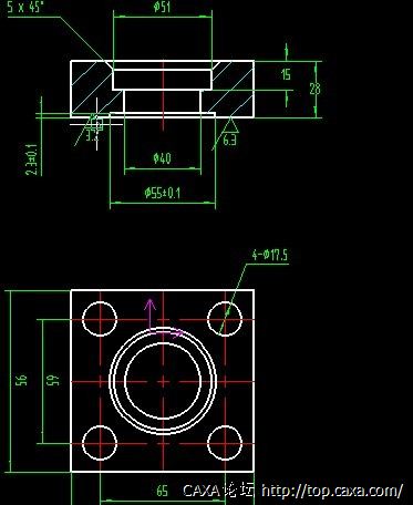
图类似于这样的,是法兰,标题栏是南通锻压设备有限公司
未命名.jpg
回复 支持 反对

使用道具 举报

19

主题

1944

帖子

5124

积分

金牌会员

Rank: 6Rank: 6

积分
5124

咖迷论坛管理(CAXA)

发表于 2013-2-1 16:25:29 | 显示全部楼层
回复 6楼小慧的帖子

如果能的话,最好能告知一下是用哪个版本做出来的。
回复 支持 反对

使用道具 举报

您需要登录后才可以回帖 登录 | 立即注册

本版积分规则

手机版|小黑屋|咖迷社区(CAXA数码大方) ( 京ICP备05001831号-1 )

GMT+8, 2025-10-1 12:56 , Processed in 0.187319 second(s), 25 queries .

Powered by Discuz! X3.4

Copyright © 2001-2021, Tencent Cloud.

快速回复 返回顶部 返回列表