咖迷社区(CAXA数码大方)

 找回密码
 立即注册

QQ登录

只需一步,快速开始

查看: 9467|回复: 3

两个电子图版的问题

[复制链接]

7

主题

29

帖子

29

积分

新手上路

Rank: 1

积分
29
发表于 2011-5-25 11:32:00 | 显示全部楼层 |阅读模式
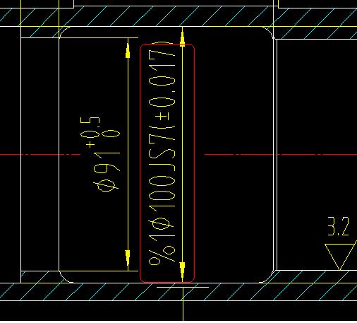
1、打开老版本电子图版文件Φ会变成%1

jpg

jpg


2、公差文字会变形

jpg

jpg


XG050B02Z轴承座.exb

248.5 KB, 下载次数: 2123

exb

回复

使用道具 举报

49

主题

1282

帖子

4万

积分

超级版主

Rank: 6Rank: 6

积分
41111

咖迷论坛管理(CAXA)

发表于 2011-5-25 16:45:00 | 显示全部楼层
这个文件已经不是老版本了,把老版本的源文件上传上来。
才能验证2007和2011打开对比,是否存在兼容问题。
回复 支持 反对

使用道具 举报

65

主题

979

帖子

3万

积分

社区专家

Rank: 8Rank: 8

积分
39964

咖迷社区专家(CAXA)

QQ
发表于 2011-5-25 13:55:00 | 显示全部楼层
第一尺寸的标注为何用文本替代?你的图是DWG转的吗?存在转换不全?
双击该尺寸重新生成就好了。奇怪的现象。

jpg

jpg


回复 支持 反对

使用道具 举报

46

主题

1283

帖子

1万

积分

版主

Rank: 4

积分
19843

咖迷社区专家(CAXA)

QQ
发表于 2011-5-25 12:54:00 | 显示全部楼层
图片没传上来吧
回复 支持 反对

使用道具 举报

您需要登录后才可以回帖 登录 | 立即注册

本版积分规则

手机版|小黑屋|咖迷社区(CAXA数码大方) ( 京ICP备05001831号-1 )

GMT+8, 2025-10-1 19:17 , Processed in 0.172670 second(s), 25 queries .

Powered by Discuz! X3.4

Copyright © 2001-2021, Tencent Cloud.

快速回复 返回顶部 返回列表