咖迷社区(CAXA数码大方)

 找回密码
 立即注册

QQ登录

只需一步,快速开始

楼主: capp2011

提供Marswu大师开发的多文档标签,方便切换多文档。

[复制链接]

0

主题

20

帖子

48

积分

新手上路

Rank: 1

积分
48
发表于 2011-6-1 14:44:00 | 显示全部楼层
功能效果挺好,只是容易出错。
回复 支持 反对

使用道具 举报

108

主题

1545

帖子

6万

积分

超级版主

Rank: 6Rank: 6

积分
61233

咖迷社区专家(CAXA)

QQ
发表于 2011-6-1 16:02:00 | 显示全部楼层
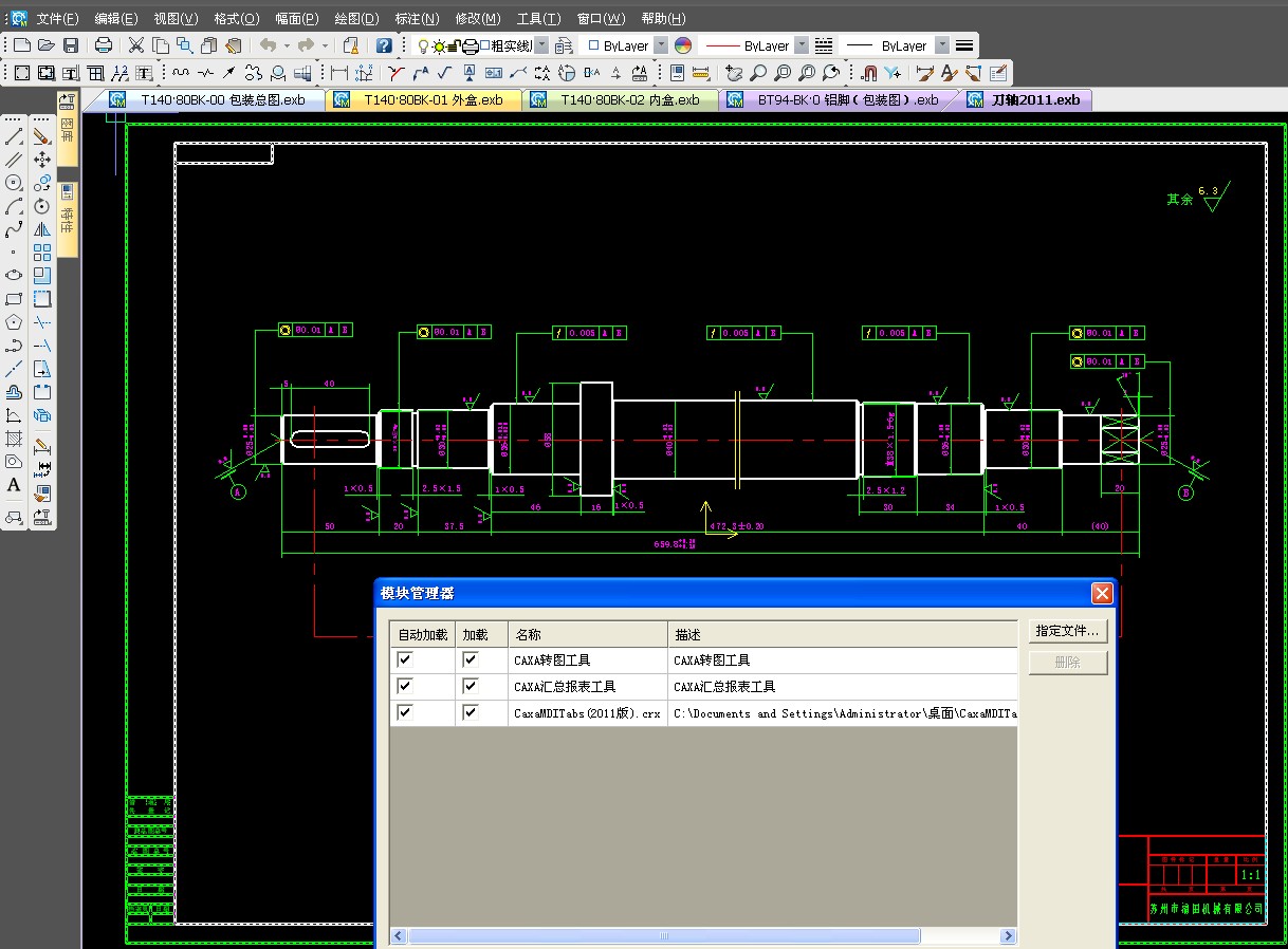
吴大师的这个工具用过蛮长时间了,感觉非常实用。不过,每次启动CAXA电子图板程序必须手动加载,在“模版管理器”中设置了自动加载也不行。要是能够自动加载就更好了。我每天都在用到。谢谢吴大师!

jpg

jpg
回复 支持 反对

使用道具 举报

23

主题

274

帖子

399

积分

注册会员

Rank: 2

积分
399
发表于 2011-6-1 16:13:00 | 显示全部楼层
我的2011R2版的怎么不能借用卡片,第一次点没反应,第二次点软件就重启了?为什么啊
回复 支持 反对

使用道具 举报

23

主题

274

帖子

399

积分

注册会员

Rank: 2

积分
399
发表于 2011-6-1 16:17:00 | 显示全部楼层
试了好几次了,都这样啊,2011R2怎么借用卡片啊?
回复 支持 反对

使用道具 举报

18

主题

127

帖子

437

积分

注册会员

Rank: 2

积分
437
 楼主| 发表于 2011-6-1 18:07:00 | 显示全部楼层

回复 11# lhjjg 的帖子

多文档标签插件:打上CAXA2011R2版的2011.5.17补丁包,不容易错,可以自动加载,本人测试过了。没有打上补丁包,确实容易出错。
回复 支持 反对

使用道具 举报

108

主题

1545

帖子

6万

积分

超级版主

Rank: 6Rank: 6

积分
61233

咖迷社区专家(CAXA)

QQ
发表于 2011-6-1 18:43:00 | 显示全部楼层

回复 15# capp2011 的帖子

谢谢!我试试。
回复 支持 反对

使用道具 举报

108

主题

1545

帖子

6万

积分

超级版主

Rank: 6Rank: 6

积分
61233

咖迷社区专家(CAXA)

QQ
发表于 2011-6-1 18:50:00 | 显示全部楼层
“CAXA2011R2版的2011.5.17补丁包”在哪儿有下载?谢谢给个链接。
回复 支持 反对

使用道具 举报

18

主题

127

帖子

437

积分

注册会员

Rank: 2

积分
437
 楼主| 发表于 2011-6-1 19:12:00 | 显示全部楼层

回复 14# verysmile 的帖子

我用CAXA2011R2工艺版,同样有此问题,我用借用卡片时,不会出现无反应和重启现象,但是单击确定后,要借用的卡片并没有出现。CAXA2007工艺无此问题。
回复 支持 反对

使用道具 举报

18

主题

127

帖子

437

积分

注册会员

Rank: 2

积分
437
 楼主| 发表于 2011-6-1 19:16:00 | 显示全部楼层

回复 16# osis 的帖子

CAXA2011R2工艺版补丁包5.17:http://top.caxa.com/showtopic-4171.aspx
CAXA2011R2机械版补丁包5.11:http://top.caxa.com/showtopic-4001.aspx
回复 支持 反对

使用道具 举报

0

主题

93

帖子

154

积分

注册会员

Rank: 2

积分
154
发表于 2011-6-2 00:52:00 | 显示全部楼层
可以试试,看好不好用
回复 支持 反对

使用道具 举报

您需要登录后才可以回帖 登录 | 立即注册

本版积分规则

手机版|小黑屋|咖迷社区(CAXA数码大方) ( 京ICP备05001831号-1 )

GMT+8, 2025-12-10 12:55 , Processed in 0.140504 second(s), 24 queries .

Powered by Discuz! X3.4

Copyright © 2001-2021, Tencent Cloud.

快速回复 返回顶部 返回列表