咖迷社区(CAXA数码大方)

 找回密码
 立即注册

QQ登录

只需一步,快速开始

查看: 7118|回复: 3

2013排版打印时,线条细不了,用2007排版正常

[复制链接]

6

主题

15

帖子

33

积分

新手上路

Rank: 1

积分
33
发表于 2013-9-25 16:02:35 | 显示全部楼层 |阅读模式
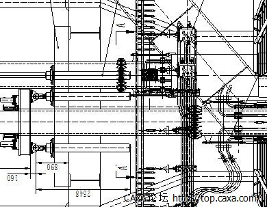
2013排版打印时,线条细不了,修订逻辑线宽,不能修改,按细线打印也不行如下图效果

有没有解决办法
2007.jpg
2013.jpg
回复

使用道具 举报

6

主题

15

帖子

33

积分

新手上路

Rank: 1

积分
33
 楼主| 发表于 2013-9-25 16:23:08 | 显示全部楼层
上面图是2007 排版预览效果     下面图2013  排版预览效果,实际打印效果和预览一样,   有没有遇到同样问题的?????
回复 支持 反对

使用道具 举报

3

主题

2506

帖子

1万

积分

超级版主

Rank: 6Rank: 6

积分
14898
发表于 2013-9-27 10:15:18 | 显示全部楼层
请您提供一下这张图纸,已经您的打印设置选项,我们来验证一下,多谢。
回复 支持 反对

使用道具 举报

0

主题

2

帖子

7

积分

新手上路

Rank: 1

积分
7
发表于 2013-9-27 14:56:16 | 显示全部楼层
我的也有该问题,我的是2011R4版本。换了2013的也是有该问题,希望CAXA能尽快解决该BUG!
回复 支持 反对

使用道具 举报

您需要登录后才可以回帖 登录 | 立即注册

本版积分规则

手机版|小黑屋|咖迷社区(CAXA数码大方) ( 京ICP备05001831号-1 )

GMT+8, 2025-10-1 19:25 , Processed in 0.124874 second(s), 23 queries .

Powered by Discuz! X3.4

Copyright © 2001-2021, Tencent Cloud.

快速回复 返回顶部 返回列表