咖迷社区(CAXA数码大方)

 找回密码
 立即注册

QQ登录

只需一步,快速开始

查看: 8088|回复: 1

关于出图时截断视图的问题

[复制链接]

63

主题

104

帖子

154

积分

注册会员

Rank: 2

积分
154
发表于 2014-2-25 22:13:23 | 显示全部楼层 |阅读模式
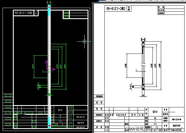
上次我问过这个问题,没有图片,没表达清楚。这次请看图
一个比较长的东西,在工程图中使用了截断视图(右),当时输出成了PDF文件。当这个工程图关闭后再打开时,截断信息丢失了(左),变成了完整视图,但尺寸标注信息还在原来的位置。
jieduan.jpg
回复

使用道具 举报

127

主题

5031

帖子

5万

积分

超级版主

Rank: 6Rank: 6

积分
51528

咖迷社区专家(CAXA)

发表于 2014-2-25 22:31:50 | 显示全部楼层
楼主保存了吗?
回复 支持 反对

使用道具 举报

您需要登录后才可以回帖 登录 | 立即注册

本版积分规则

手机版|小黑屋|咖迷社区(CAXA数码大方) ( 京ICP备05001831号-1 )

GMT+8, 2025-10-26 03:59 , Processed in 0.156105 second(s), 23 queries .

Powered by Discuz! X3.4

Copyright © 2001-2021, Tencent Cloud.

快速回复 返回顶部 返回列表