咖迷社区(CAXA数码大方)

 找回密码
 立即注册

QQ登录

只需一步,快速开始

查看: 8522|回复: 5

坐标标注后,视图再移位,则坐标值就变了

[复制链接]

1

主题

4

帖子

6

积分

新手上路

Rank: 1

积分
6
发表于 2017-1-8 14:44:08 | 显示全部楼层 |阅读模式
请教,如何让标注的坐标原点随视图一起移动?
回复

使用道具 举报

1

主题

4

帖子

6

积分

新手上路

Rank: 1

积分
6
 楼主| 发表于 2017-1-8 16:51:48 | 显示全部楼层
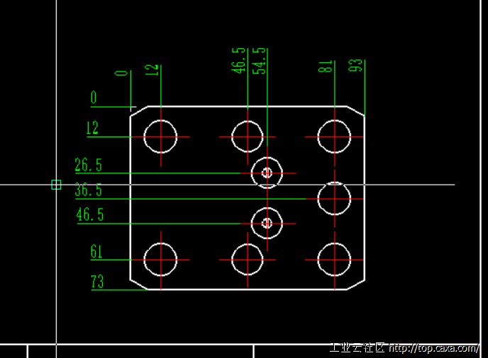
请教如附图
QQ截图1.png
QQ截图2.png
回复 支持 反对

使用道具 举报

3

主题

2506

帖子

1万

积分

超级版主

Rank: 6Rank: 6

积分
14898
发表于 2017-1-10 09:03:12 | 显示全部楼层
坐标移位是是因为相对于选择的坐标原点位置变了,所以值变了。
回复 支持 反对

使用道具 举报

1

主题

4

帖子

6

积分

新手上路

Rank: 1

积分
6
 楼主| 发表于 2017-1-10 13:03:22 | 显示全部楼层
是啊,可是坐标标注完成后,再调整视图的位置也是常有的事,位置一调整,就要重新标注,也太麻烦了
回复 支持 反对

使用道具 举报

9

主题

357

帖子

4316

积分

版主

Rank: 4

积分
4316
发表于 2017-1-11 08:27:36 | 显示全部楼层
该问题已有用户反馈过,会在2018中解决。
回复 支持 反对

使用道具 举报

1

主题

4

帖子

6

积分

新手上路

Rank: 1

积分
6
 楼主| 发表于 2017-1-11 12:50:51 | 显示全部楼层
哈哈!这是版主的承诺?反应也太慢了
回复 支持 反对

使用道具 举报

您需要登录后才可以回帖 登录 | 立即注册

本版积分规则

手机版|小黑屋|咖迷社区(CAXA数码大方) ( 京ICP备05001831号-1 )

GMT+8, 2025-10-1 20:55 , Processed in 0.187316 second(s), 22 queries .

Powered by Discuz! X3.4

Copyright © 2001-2021, Tencent Cloud.

快速回复 返回顶部 返回列表