咖迷社区(CAXA数码大方)

 找回密码
 立即注册

QQ登录

只需一步,快速开始

查看: 15252|回复: 13

这个图把我难到了

[复制链接]

30

主题

119

帖子

916

积分

中级会员

Rank: 3Rank: 3

积分
916
发表于 2011-9-29 14:13:00 | 显示全部楼层 |阅读模式
这个图怎么画
   画不出来
谢谢指教

jpg

jpg
回复

使用道具 举报

27

主题

578

帖子

1万

积分

社区专家

Rank: 8Rank: 8

积分
12369

咖迷社区专家(CAXA)

QQ
发表于 2011-9-29 14:41:00 | 显示全部楼层
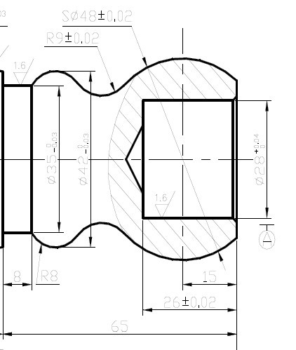
困难的地方大概是R8、R9两个圆弧吧。
先把能画的都画好,包括Sφ48,这些应该很简单的。然后定φ42尺寸,就是以中心线画间距为21的平行线,
然后用〔两点-半径〕画R8的圆弧,第一点取φ35尺寸的交点,第二点取刚才做的平行线的切点,输入半径8,回车,如果圆弧长度不够,可以拉伸。
现在画R9的圆弧,同样用〔两点-半径〕画,第一点、第二点分别取R8圆弧、Sφ48圆的切点,输入半径9,回车。
剪去多余的线条,OK
回复 支持 反对

使用道具 举报

83

主题

2074

帖子

1万

积分

版主

Rank: 4

积分
17664

咖迷社区专家(CAXA)

发表于 2011-9-29 14:51:00 | 显示全部楼层
说说哪里画出不来,估计是R8的圆弧,可用两点半径方式画。R9的圆弧可用圆角命令画或用TTR方式画圆。
回复 支持 反对

使用道具 举报

8

主题

398

帖子

1856

积分

高级会员

Rank: 4

积分
1856
发表于 2011-9-29 17:16:00 | 显示全部楼层
2楼说的很详细了
回复 支持 反对

使用道具 举报

18

主题

118

帖子

120

积分

注册会员

Rank: 2

积分
120
发表于 2011-9-29 19:26:00 | 显示全部楼层
二楼的说法画得出来。
回复 支持 反对

使用道具 举报

13

主题

55

帖子

358

积分

注册会员

Rank: 2

积分
358
发表于 2011-9-30 08:38:00 | 显示全部楼层
楼主是要这样的吗

png

png
回复 支持 反对

使用道具 举报

17

主题

219

帖子

0

积分

新手上路

Rank: 1

积分
0
发表于 2011-9-30 17:41:00 | 显示全部楼层
这图不难呀
回复 支持 反对

使用道具 举报

39

主题

233

帖子

732

积分

中级会员

Rank: 3Rank: 3

积分
732
发表于 2011-10-1 00:26:00 | 显示全部楼层
看了,是有点难
回复 支持 反对

使用道具 举报

13

主题

135

帖子

452

积分

注册会员

Rank: 2

积分
452
发表于 2011-10-1 18:16:00 | 显示全部楼层
这是在学校里就学的了,记得最先画的是吊钩图纸。
回复 支持 反对

使用道具 举报

0

主题

75

帖子

2

积分

新手上路

Rank: 1

积分
2
发表于 2011-10-4 11:18:00 | 显示全部楼层
学习,学习
回复 支持 反对

使用道具 举报

您需要登录后才可以回帖 登录 | 立即注册

本版积分规则

手机版|小黑屋|咖迷社区(CAXA数码大方) ( 京ICP备05001831号-1 )

GMT+8, 2025-10-1 15:29 , Processed in 0.218546 second(s), 24 queries .

Powered by Discuz! X3.4

Copyright © 2001-2021, Tencent Cloud.

快速回复 返回顶部 返回列表